Μεγάλος Περίπατος: Αρχίζει το Σάββατο η παρέμβαση στην πλατεία Συντάγματος
Μετά την Βασ. Όλγας και την Πανεπιστημίου όπου ήδη καθημερινά όλο και περισσότεροι κάτοικοι και επισκέπτες της Αθήνας χρησιμοποιούν τους διευρυμένους πεζόδρομους και τις ποδηλατικές διαδρομές, ο Μεγάλος Περίπατος της πόλης κάνει το επόμενο βήμα στην Πλατεία Συντάγματος.
Σύμφωνα με ανακοίνωση του Δήμου Αθηναίων στις 22:00 το βράδυ του Σαββάτου 27 Ιουνίου ξεκινούν οι παρεμβάσεις στην κάτω πλευρά της πλατείας Συντάγματος, που απελευθερώνουν περισσότερο δημόσιο χώρο, στην πιο πολυσύχναστη περιοχή της πρωτεύουσας, κάνοντάς την πιο φιλική και πιο ευχάριστη για όσους ζουν κι εργάζονται εκεί αλλά και για τους χιλιάδες καθημερινούς επισκέπτες της.
Την ίδια στιγμή θα τεθούν σε ισχύ και οι κυκλοφοριακές ρυθμίσεις που έχουν ως σκοπό την ομαλή διέλευση όλων των οχημάτων.
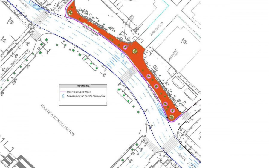
Συγκεκριμένα, στην πλατεία Συντάγματος οι παρεμβάσεις αφορούν στο οδικό τμήμα που συνδέει την οδό Σταδίου (διασταύρωση με Καραγιώργη Σερβίας) με την οδό Φιλελλήνων (διασταύρωση με Μητροπόλεως) όπου θα δημιουργηθεί νέος επιπλέον χώρος για πεζούς στη δεξιά πλευρά κυκλοφορίας.
Με τις νέες ρυθμίσεις κυκλοφορίας, θα παραμείνουν τρεις λωρίδες κυκλοφορίας ελεύθερες για όλα τα οχήματα και μία λωρίδα κυκλοφορίας για την αποκλειστική κίνηση των λεωφορείων. Επιπλέον, στο τμήμα μεταξύ των οδών Ερμού και Μητροπόλεως θα δημιουργηθεί εσοχή για στάση λεωφορείων.
Με αυτές τις ρυθμίσεις, η κυκλοφοριακή λειτουργία δεν μεταβάλλεται, ενώ διασφαλίζεται η ροή των οχημάτων που εισέρχονται από τις οδούς Σταδίου και Βασ. Γεωργίου Α’, προς την οδό Φιλελλήνων, με δυνατότητα δεξιάς στροφής προς την οδό Μητροπόλεως και αριστερής στροφής προς την οδό Όθωνος, όπως ακριβώς και σήμερα.

Στην παρούσα φάση, από αυτό το οδικό τμήμα θα μπορούν να διέρχονται και να κάνουν στάση για επιβίβαση και αποβίβαση τόσο τα λεωφορεία και τα τρόλεϊ όσο και τα ταξί. Η Τροχαία και η Δημοτική Αστυνομία θα φροντίσουν για τον συστηματικό έλεγχο της στάσης και της στάθμευσης, στο σύνολο των οδών της περιοχής.
Οι νέες κυκλοφοριακές ρυθμίσεις, στην κάτω πλευρά της Πλατείας Συντάγματος, σκοπό έχουν εκτός από την απόδοση σημαντικού χώρου στους πεζούς, θα διευκολύνουν επίσης την διέλευση από την οδό Ερμού προς το κέντρο της πλατείας, αφού η διάβαση των πεζών θα έχει μικρότερο μήκος.
Οι εναλλακτικές διαδρομές για τους διερχόμενους οδηγούς

Για την αποφυγή των καθυστερήσεων που ενδέχεται να προκληθούν τις πρώτες ημέρες των αλλαγών, οι συγκοινωνιολόγοι προτείνουν εναλλακτικές διαδρομές που θα διευκολύνουν την μετακίνηση των οδηγών:
Από βορειοδυτικές περιοχές και Ομόνοια, Πατήσια, Κυψέλη
- Μέσω Ακαδημίας
- Μέσω Πειραιώς - Χαμοστέρνας - Καλλιρόης
- Μέσω Λ. Αλεξάνδρας
Οι κυκλοφοριακές ρυθμίσεις του Μεγάλου Περιπάτου της Αθήνας στοχεύουν στη μείωση της διερχόμενης κυκλοφορίας από το κέντρο της Αθήνας (οχήματα που τόσο η προέλευση όσο και ο προορισμός τους δεν έχουν σχέση με το κέντρο) και για το λόγο αυτό προτείνεται η κίνηση σε περιφερειακούς του κέντρου άξονες.
Επίσης προτείνονται εναλλακτικά μέσα και συνδυασμοί μετακινήσεων:
- Για την είσοδο στο κέντρο από τα προάστια προτείνεται και η μετεπιβίβαση, τηρώντας όλους τους προβλεπόμενους κανόνες υγιεινής, στα Μέσα Μαζικής Μεταφοράς, στις παρυφές των κεντρικών περιοχών, όπως στο μετρό (π.χ. στον μεγάλο υπόγειο χώρο στάθμευσης στο μετρό Συγγρού-Φιξ) και στα λεωφορεία και τρόλεϊ.
- Για τις κοντινές μετακινήσεις στο κέντρο προτείνεται, όπου είναι δυνατόν, το περπάτημα και το ποδήλατο.
- Όλα τα στοιχεία δείχνουν ότι οι ώρες κυκλοφοριακής αιχμής στο κέντρο είναι 8:30-10:00 το πρωί και 14:00-16:00 το απόγευμα.
Στην παρούσα φάση σταδιακής εφαρμογής των κυκλοφοριακών ρυθμίσεων του Μεγάλου Περιπάτου, δεν έχει ενεργοποιηθεί ακόμα η αποκλειστική χρήση των ΜΜΜ στις νέες λωρίδες κυκλοφορίας τους, που διαμορφώνονται στο κέντρο της πόλης έπειτα από πολλά χρόνια (Πανεπιστημίου, Ακαδημίας, Βασ.Σοφίας, Φιλελλήνων και στο κάτω μέρος της πλατείας Συντάγματος). Οι λεωφορειολωρίδες θα ενεργοποιηθούν σύντομα, όταν η κυκλοφορία προσαρμοστεί στις νέες ρυθμίσεις, ταυτόχρονα με τη λειτουργία αρκετών νέων οργανωμένων χώρων και θέσεων αναμονής ταξί.
Στην πλατεία Συντάγματος, οι επιβάτες μπορούν να εξυπηρετούνται και από τα ταξί που βρίσκονται στον χώρο αναμονής επί της οδού Όθωνος, τα οποία πλέον έχουν τη δυνατότητα να χρησιμοποιούν τη λεωφορειολωρίδα αντίθετης ροής επί της Λ. Αμαλίας (από την οδό Όθωνος έως την οδό Φιλελλήνων) με νότια κατεύθυνση.
Δείτε όλες τις τελευταίες Ειδήσεις από την Ελλάδα και τον Κόσμο, τη στιγμή που συμβαίνουν, στο Newsbomb.gr.
Διαβάστε επίσης:
Βιτριόλι: «Βόμβα» στην υπόθεση! «Άλλος είναι ο λόγος που την έκαψε»